As part of the Kežmarská Hut
architectural competition to design a facilities building in Slovakia's High Tatras Peak, Atelier 8000's designed to meet the design requirement of "accommodation, a restaurant, a medical facility, skiing storage
and a garage for a snowmobile" for people walking across the Slovakia's highest mountain range. The design is a pure cube dropped on one of its vertices aimed at "inducing a feeling of lightness and randomness in the observer", blending into its natural environment as its sharp edges merge with the peak of the rocks around it.

The cube was oriented on its vertice to allow three of its sides to be visible from any point around its perimeter. Each of these surfaces were made of square grids (measuring 1m x 1m for ease of handling and transportation) combining the functions of windows, photovoltaic cells and aluminium panels. The result is a building surface that not only offers daylight and weather protection but also generates solar energy, thus, reducing the building's carbon footprint.
According to the designers, "The glass surfaces of windows and photovoltaic panels along with the
light transparency of the metal plating complete the whole picture of
the site with a touch of glimmer – just like the glints and reflections
which can be observed on the surface of a mountain lake or on thawing
ice"
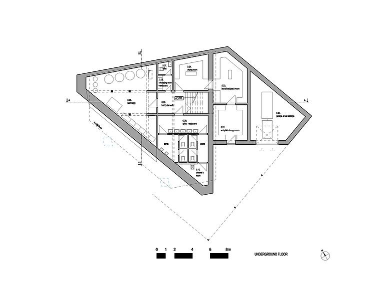
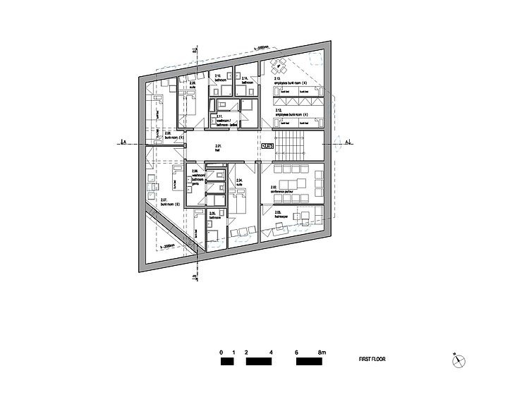
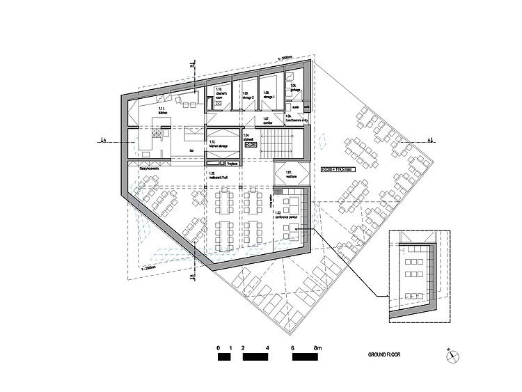
The garage for the snowmobiles, ski storage, boots and backpacks, drying room, restaurant restrooms, technological equipments as well as the staff storage were on the underground floor. The restaurant and the deck were on the Ground Floor with the accomodation on the 1st and 2nd Floor. The Attic had a meditation room and additional sleeping accomodation for emergency needs.
Credit;
Dezeen and
Homeadore.
No comments:
Post a Comment